Toyota Tsusho

Toyota Tsusho

PROJE KÜNYESİ

Proje adı:
Toyota Tsusho Fabrikası Mevcut ve Ek Bina Zemin Güçlendirme İşleri
İşveren:
Hazama Ando Corporation - Shimuzu Corporation
Tarih:
2016-2019
Lokasyon:
Sakarya, Arifiye
Faaliyetler:
Zemin Etüdü, Geoteknik Tasarım, Zemin Güçlendirme
Uygulama:
Fore Kazık, Jet Grout, Mini DSM

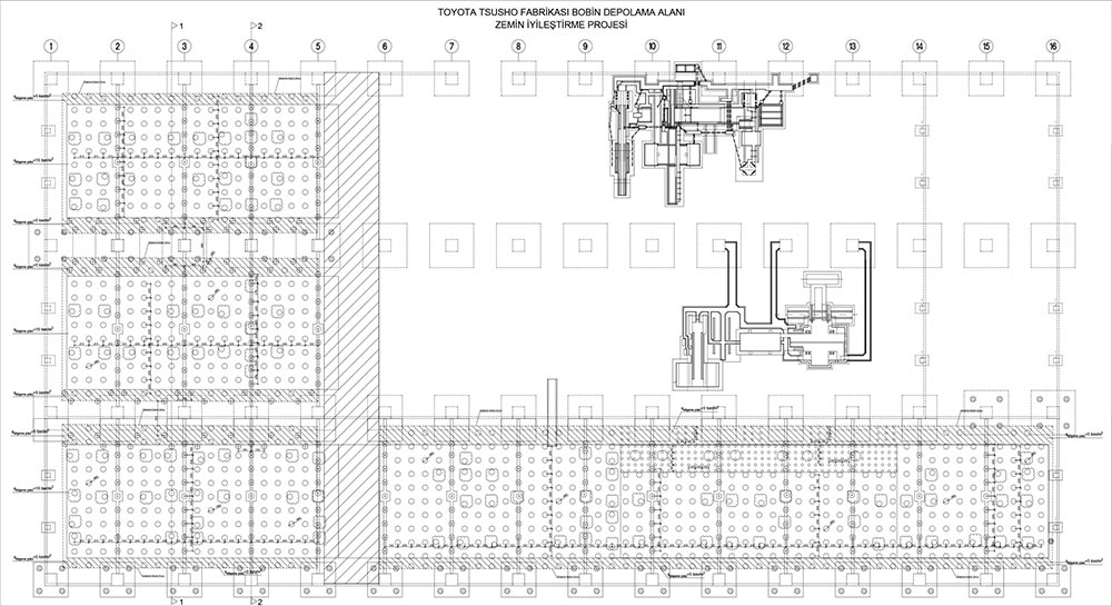
Toyota Tsusho Fabrikası ek bina projesi kapsamında tarafımızca yapılan zemin etüt çalışmaları sonrası zemin güçlendirme projesi ve uygulaması yapılmıştır. Ek bina projesi kapsamında 3.100 m ø65 cm çaplı fore kazık ve 12.500 m ø80 cm çaplı jet grout imalatı yapılmıştır.
Ayrıca mevcut binada karşılaşılan oturma problemlerinin bertaraf edilmesi amacıyla toplam 27.770 m ø80 cm çaplı jet grout ve ø35 cm çaplı 3.000 m mini deep soil mixing (Mini DSM-zemin karıştırma) kolonu imal edilmiştir.

Proje kapsamında verilen hizmetler:

Zemin EtüdüGeoteknik TasarımZemin Güçlendirme

Projede tercih edilen uygulamalar:

Fore KazıkJet GroutMini DSM






Önceki Projeler Sonraki Projeler

<
>
x


 


Temel Müteahhitleri Derneği Geobos, Temel Müteahhitleri Derneği üyesidir.