Akbank

Akbank


PROJECT INFO

Project:
Soil Improvement Works of Akbank New Data Center Project
Customer:
Akbank T.A.S. - Tek Yapi Insaat
Date:
2017
Location:
Kocaeli, Gebze

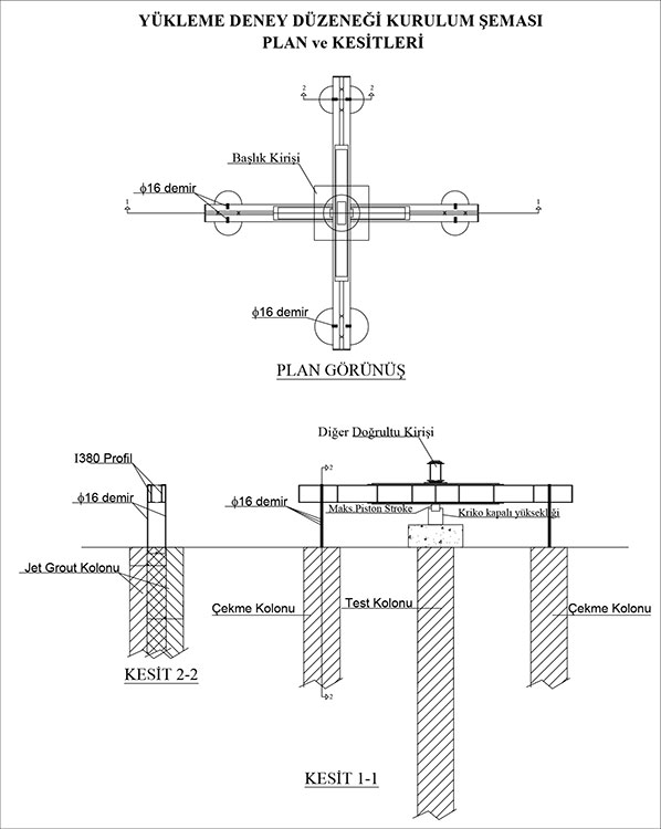
For the Akbank New Data Center Project, a total of 25.350 m jet grout columns (ø80 cm) have been constructed in Gebze, Sekerpinar.

Services given:

Geotechnical DesignSoil Improvement

Applications:

Jet Grout







Previus Next

<
>
x


 


Temel Müteahhitleri Derneği Geobos is a member of 'Temel Müteahhitleri Derneği'.